Phone: 100 - 222 3455

Maison T4 meublée avec jardin

chemin saint Jean
Maison
3 Chambres
1 Salles de bain
1 Garages

Maison T4 meublée avec garage et jardin - Colomiers

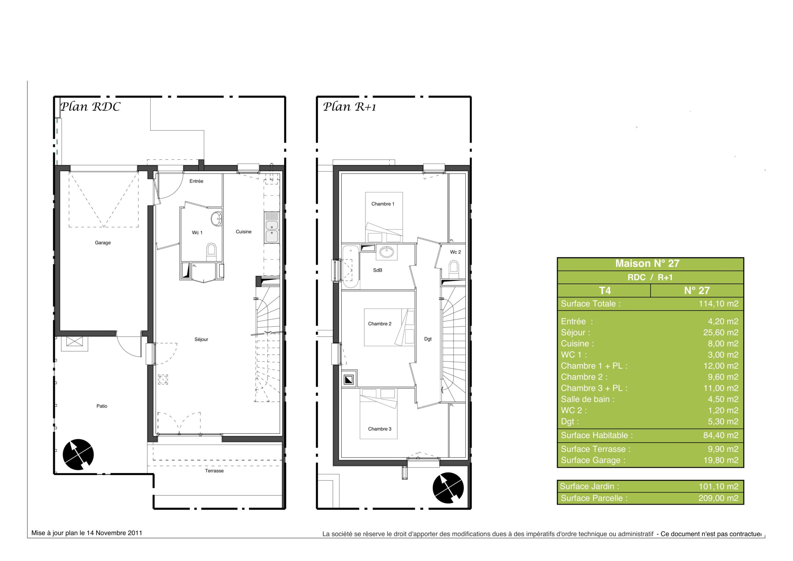
 Maison T4, de 84.40 m2 louée meublée, située à Colomiers - Chemin Saint-Jean. DISPONIBLE le 03/01/2026
Proche Groupe Scolaire Georges Sand (750 m) et Lycée International Victor Hugo
Carrefour Market et zone commerciale du Perget à 5 min en voiture.
Entrée avec WC/buanderie, Belle pièce de vie avec cuisine (33.60 m2), lumineuse,  à l'étage 3 chambres (9.5/11/12 m2) avec placards, salle d'eau,  WC séparé. Grand garage de 19.80 m2.
Patio intimiste et jardin clôturé de 100 m2, à l'arrière.
Possibilité de garer une voiture devant le garage.
 Maison très récente et moderne.
Chauffage et eau chaude au gaz.
Loyer mensuel CC 1307.72 € dont 25 € de provisions de charges (TOM, révision annuelle chaudière)
Dépôt de Garantie 2564 €
Honoraires charge locataire 750€ TTC dont 252 € pour l'état des lieux.
DPE C/ GES C (réalisé le 19/01/2024 - estimation des couts de 900 € à 1280 € - index prix 2021)
Transports : bus 150 et 151 à quelques mètres - Accès rapide à la rocade et à l'aéroport. - Gare TER à 4 min en voiture.
Secteur proche: AIRBUS
Renseignements ☎️ 06.76.71.62.55 ou contact

IMMO PODENCO vous accompagne dans tous vos  projets d'achat-vente-location

Les informations sur les risques auxquels ce bien est exposé sont disponibles sur le site Géorisque www.georisques.gouv.fr

Maison T4 meublée avec garage et jardin - Colomiers

Détails de la propriété:

Type de propriété: Maison
Statut de propriété: Location
Chambres: 3
Salle de bain: 1
Garage: 1
Année de construction: 2012

Caractéristiques:

  • Air conditionné
  • Balcon/terrasse
  • chauffage central gaz
  • chauffage électrique
  • Cuisine d'été
  • Garage
  • Piscine
  • portail automatique
  • résidence sécurisée
  • tennis

Adresse de la propriété:

chemin saint Jean

Examen pour Maison T4 meublée avec jardin

Avatar
Évaluation globale:
Quality of Property
Location of Property
Neighborhood
Features
Floor Plans
Revoir le contenu:
Connexion pour laisser un avis